Ez az ingatlan foglalózva van

Vidéki nyugalom elérhető áron!

4461 Nyomtatás Ajánlás Facebook

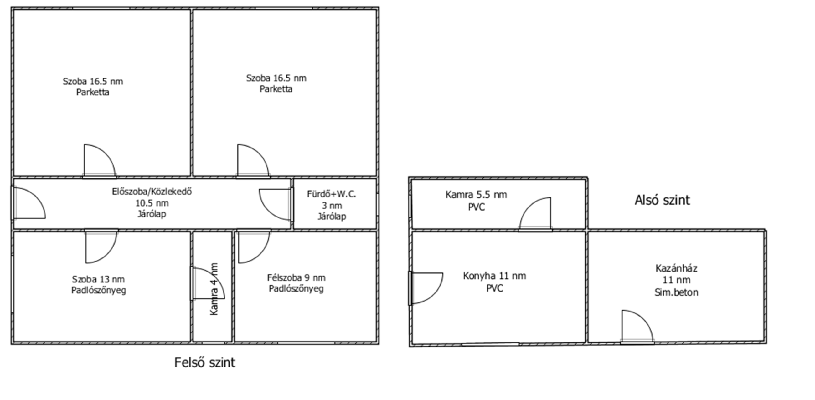
Cereden, 88 nm-es, 3+1 félszobás, tégla szerkezetű, tehermentes családi ház eladó!

Vendégház kialakítására alkalmas! Már több hasonló egység üzemel sikeresen a faluban!

Helyiségei: 3 szoba, 1 félszoba, előszoba/közlekedő, kamra, fürdőszoba, az alsó szinten, konyha, kamra, kazánház.

A fűtést gáz cirkó kazán, illetve hagyományos kazán, a meleg víz ellátást villanybojler biztosítja.

Az ingatlanhoz tartozó 1500 nm-es telek, gondozott, körbekerített, területén udvari gépkocsi beálló, garázs, gazdálkodásra alkalmas melléképületek, termő gyümölcsfák, ásott kút található.

Falusi CSOK igényelhető!

Tatár Tamás
PRÉMIUM

Tatár Tamás

8 éve a Városi Ingatlaniroda tagja
Régióigazgató
Salgótarján
+36 (70) 439 8123
Észrevétel a hirdetéssel kapcsolatban
Egy ingatlanos naplója