Újépítésű lakás a Mórahalmi Gyógyfürdő mellett -1

1243 Nyomtatás Ajánlás Facebook

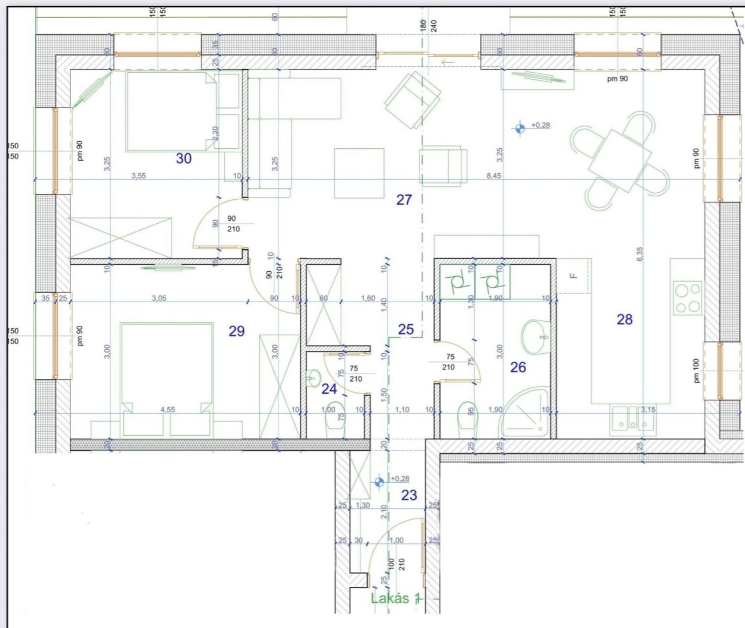
Prémium lakások eladók Mórahalom frekventált részén!

A modern társasház közvetlen közelében található az iskola, az óvoda, valamint a Szent Erzsébet Gyógyfürdő, amely mindössze néhány lépésre érhető el a nyári bejáraton keresztül.

Az ingatlan Porotherm 25 cm-es téglából épül, 35 cm grafit hőszigeteléssel, amely kimagasló energiahatékonyságot biztosít. Az épület összesített energetikai jellemzője 72,34 kWh/m², ami közel nulla energiaigényű besorolásnak felel meg.

Műszaki tartalom:
• A lakások teljes területén elektromos padlófűtés (infra szőnyeg)
• Napelemes rendszer a villamosenergia-ellátás támogatására
• SMART melegvíz-tároló a korszerű és takarékos melegvíz-ellátásért
• Modern, energiatakarékos megoldások prémium kivitelben

Az épület várható elkészülése 2026 április.

Az ár tartalmazza a lakáson belüli festést, a szanitereket, valamint a hideg- és melegburkolatokat, amelyek a kivitelező által kijelölt burkolatokból választhatók.
Ettől eltérő, egyedi igények esetén külön megállapodás szükséges a kivitelező és a megrendelő között.

A kiváló lokáció, az alacsony rezsiköltség és a korszerű műszaki tartalom miatt az ingatlan ideális választás családoknak, befektetőknek.

Juhász-Zsivkov Dajana

Juhász-Zsivkov Dajana

Ingatlanértékesítő
Szeged
+36 (30) 710 4061
Észrevétel a hirdetéssel kapcsolatban
Egy ingatlanos naplója