Lehetőségek tárháza! 2 szintes családiház üzlethelységgel

2444 Nyomtatás Ajánlás Facebook

Eladó Budapest 17. kerületében, csendes és barátságos környezetben egy részben felújított, kétszintes családi ház! Az ingatlan 140 m² lakótérrel rendelkezik, melyhez egy 441 m²-es telek tartozik, ahol egy udvari gépjárműbeálló is helyet kapott.

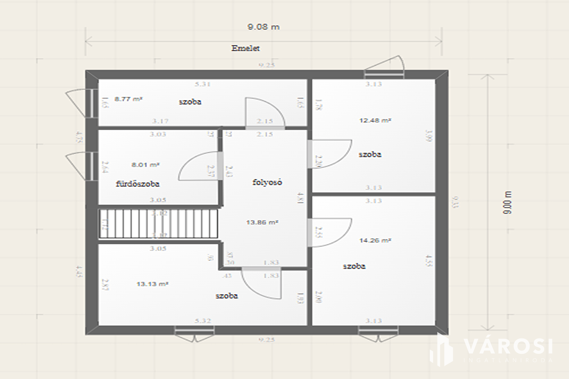
A ház tágas és jól átgondolt elrendezésű, ideális választás lehet nagycsaládosok számára. Az alsó szinten egy konyha és nappali található, mely a családi étkezések központja lehet. Ezen a szinten kapott helyet még egy külön fürdő és wc biztosítva az otthon praktikus használatát. Az emeleten további 4 szoba és egy fürdőszoba várja új lakóit, így kényelmet nyújtva minden családtag számára.

A háznak van egy 15 nm- es külön bejárattal rendelkező része, melyben külön konyha is található. Ideális üzleti tevékenységnek, lakótérnek, irodának akár bérbeadásra is!

Az épület külső hőszigetelése energiatakarékossá teszi a fenntartást, így alacsony rezsiköltségekkel számolhatunk. A melléképület további tárolási lehetőséget biztosít, sőt egy szerelőakna is rendelkezésre áll, ami a barkácsolni vágyók számára igazi kincs lehet.


Az ingatlan jó közlekedéssel rendelkezik: a közelben található tömegközlekedési eszközökkel könnyedén elérhetjük a város különböző pontjait. Ne hagyja ki ezt a nagyszerű lehetőséget, hogy egy szeretetteljes otthonra leljen Budapest zöldövezeti részében!

Igény esetén teljeskörű, ingyenes, bankfüggetlen hitelügyintézést és ügyvédi hátteret biztosítunk.

Keressen bizalommal a megtekintésért és győződjön meg személyesen e kivételes ingatlan előnyeiről!

Egeresi Viktória

Egeresi Viktória

Ingatlanértékesítő
Budapest
+36 (30) 192 5042
Észrevétel a hirdetéssel kapcsolatban
Egy ingatlanos naplója